店面名稱:尊卓陶瓷張家界旗艦店
坐落地點:湖南省張家界永定國際建材城7棟

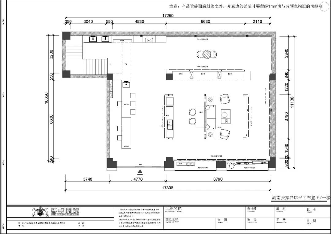
整體空間布局優勢明顯:首層和二層

——羅嘉煒 張家界店主筆設計師:柔金能量瓷磚,瓷磚中的奢侈品,顏值高、品質好,實景應用豐富,好用不貴,新一代網紅瓷磚正引領成為裝修主流。”
柔金能量瓷磚,展示尊卓的原創設計
一方面得到高端設計師和年輕消費者青睞,另一方面被廣泛應用于私人別墅、商業地產、工程項目,全國各地專賣店均有展示和銷售,幫扶代理商迅速打開市場。

外立面高科技感,高端形象,進店率自然高


前臺形象墻、洽談桌子,公司文化墻與獎牌陳列


柔金能量瓷磚在不同空間的墻地應用

客餐廳、廚衛、陽臺既為整體,又各自有界



產品多元展示:600X1200mm,750x1500mm,900X1800mm

細節設計:突顯用戶體驗和實用性,柔金能量瓷磚(天空之境) 800X800mm切割鋪貼


稻桿、絨毛等體現品牌柔文化的元素,與磚的融合運用
輕奢時尚帶點金

運用玻璃、燈帶、餐桌等軟裝隔離空間


臥室:淺灰墻磚直鋪、深灰色木紋磚人字鋪貼,避免頭重腳輕感覺




感謝鑒賞
佛山總部通過對設計審美和實用性的探索
在產品的花色、質感、搭配上都有很多創新的見解
張家界店讓代理商稱贊是:好品質、符合輕奢時尚的設計
讓業主和工程方都非常滿意,每個工地項目都圓滿交付
掃一掃 關注公眾號
抖音官網賬號
淘寶官網企業店
0757-8256 0893
0757-8256 0897



